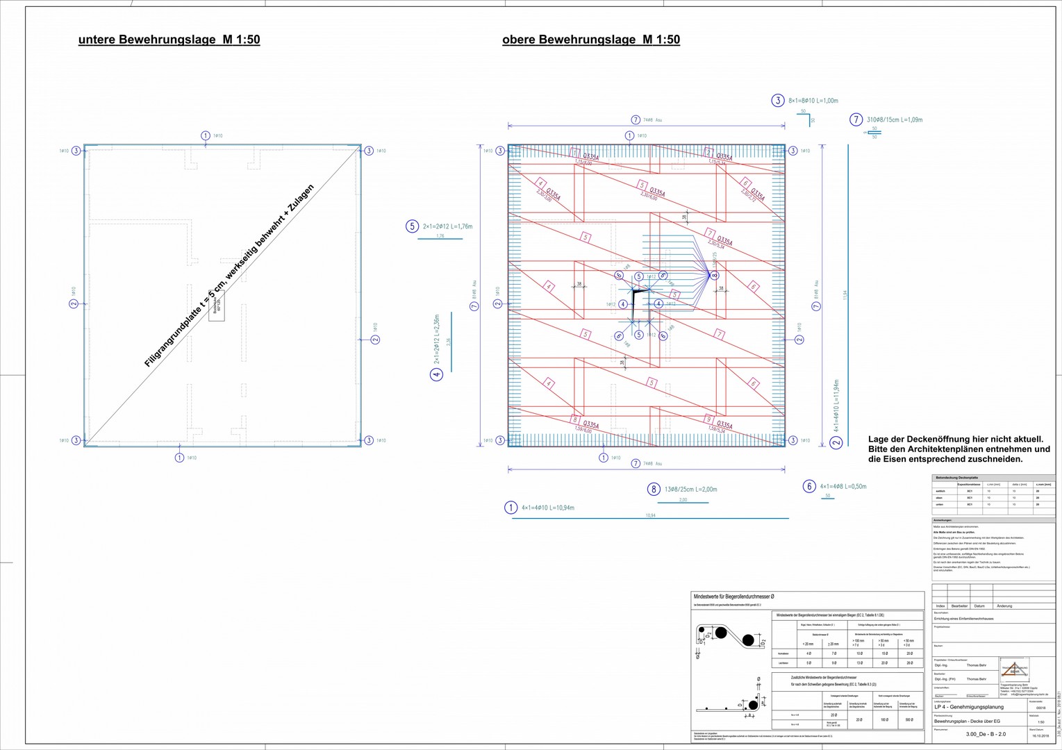
Schal- und Bewehrungspläne - TrwPl_1
Dipl.-Ing. (FH) Thomas Behr
Jahrgang 1978
gelernter Zimmerer mit Berufserfahrung
studiert an der FH Zittau/Görlitz
als Statiker im allg. Hochbau tätig seit 2009
×
Startseite
Anforderungen an Bauwerke
Historie
Referenzen
Beispielstatiken
Partner
Impressum
Datenschutz
×
Startseite
Anforderungen an Bauwerke
Historie
Referenzen
Beispielstatiken
Partner
Impressum
Datenschutz
Direkt zum Seiteninhalt
Zurück zum Seiteninhalt
Um diese Website nutzen zu können, aktivieren Sie bitte JavaScript.